一、采购单位
招标单位名称地址:必赢766net手机版
蚌埠市曹山路1000号(蚌埠市大学城)
二、招标项目:垃圾桶和分类果皮箱
三、参数要求:
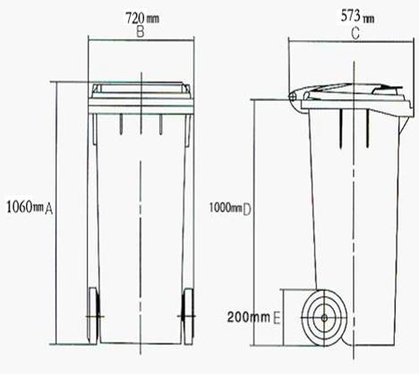
(一)品名:垃圾桶
1、数量:50个
示意及尺寸图:

产品尺寸图
2、投标产品的型号:容积
3、产品所执行的标准、标准号:市级检测单位根据最新行业标准进行检验的检测报告。
4、产品材质说明:桶体及桶盖、销子使用100﹪高密度聚乙烯(要求进口原材料)一次性注模成型无接缝。 产品材料中注入高质量防紫外线原料占3%,颜料色素占5%以确保塑料桶颜色保持鲜艳耐久不褪色长达5年。 桶体密闭有盖,桶盖与桶体有四条加强筋连接,连接处牢固。 轮轴采用Q235钢材料,穿心轴轮子,表面电镀锌12μ的厚度,防锈时间为10年。 滚轮采用噪音小的橡胶实心轮,硬度测试达到65±5以确保清运过程动作平稳,每轮承载能力
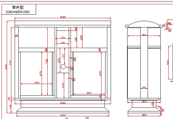
(二)分类果皮箱
1、数量:24个

2、尺寸示意图:

3、外形尺寸:1040*400*1000
4、材质:箱体为钢板,内胆为镀锌板
5、安装:膨胀螺丝固定
| 序号 | 品名 | 技术规格及配置 |
| 1 | 箱体 | 钢板1.0mm |
| 2 | 上盖 | 钢材1.2mm |
| 3 | 内胆 | 镀锌钢板1.0mm |
| 4 | 门 | 钢材1.2mm |
| 5 | 活动底板 | 钢材1.2mm |
| 6 | 底座 | 钢材1.2mm |
四、报价要求:
1、投标单位在上述技术参数范围内,以符合或基本符合上述基本配置的标准配置进行报价,并列出参数性能对应表。
2、报价需分类报产品单价及总价;
3、投标价中应包括运输搬运费用。
五、付款方式:产品经安装完毕验收合格后,在一个月之内付95%款额,余款5%作为质保金一年内付清。
六、投标人须知:
(1)自带现金叁仟元(3000)现金,做为投标保证金,不中标当场退回。
(2)投标人需提供样品实物至现场。
(3)报价中要有对质量保证及售后服务的承诺期限。
(4)企业法定代表人身份证复印件及法人授权代表身份证复印件或产品代理资格证明复印件。
(5)投标单位应自行将投标文件密封并在封口处加盖公章或合同章,并在规定时间内送达。
七、开标时间及地点:
八、联系电话:
行政管理处:0552-3172933(
监督电话:0552-3172884 (孙处长)
行 政 管 理 处
二O一三年十月十七日
